Modèle
BORA BORA 3 SL
Surface
De 68 à 90 m2
Chambres
De 2 à 3
Vous souhaitez obtenir davantage d'informations ?
Si vous avez besoin de plus d'information ou désirez obtenir une étude gratuite et personnalisée, n'hésitez pas à nous contacter
Caractéristiques du modèle
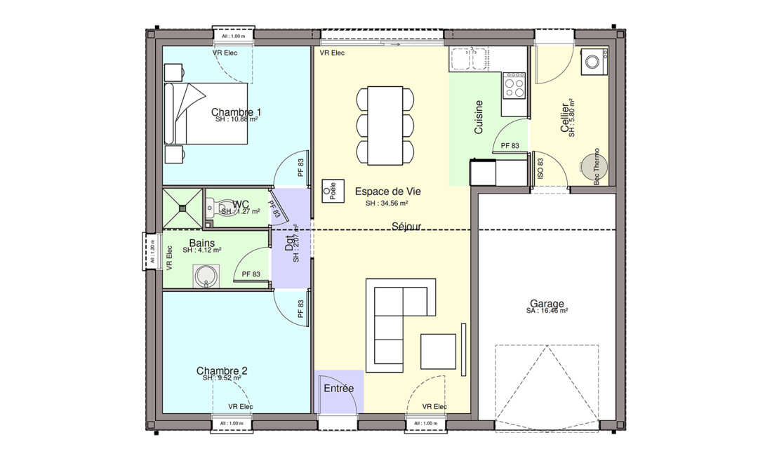
Surface | 89.72 m2 |
Pièces | 4 |
Chambres | 3 |
Salle de bain | 1 |
Description
En cours de rédaction
Plan
