Modèle
CLISSON NL
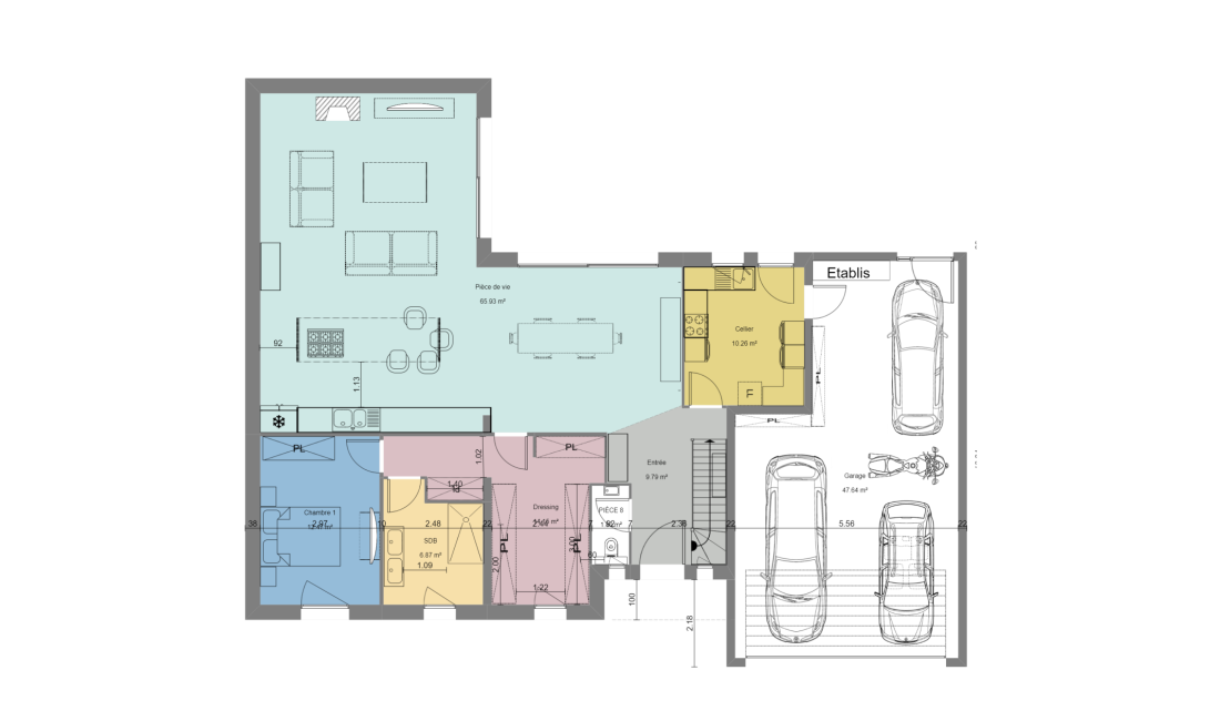
Surface
150 m2
Chambres
3
Vous souhaitez obtenir davantage d'informations ?
Si vous avez besoin de plus d'information ou désirez obtenir une étude gratuite et personnalisée, n'hésitez pas à nous contacter
Caractéristiques du modèle
Surface | 150 m2 |
Pièces | 4 |
Chambres | 3 |
Salle de bain | 2 |
Description
En cours de rédaction
Plan
