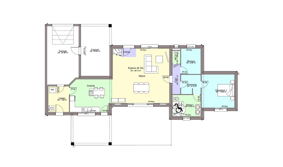
Modèle
CONCEPT 15
Surface
143 m2
Chambres
3
Vous souhaitez obtenir davantage d'informations ?
Si vous avez besoin de plus d'information ou désirez obtenir une étude gratuite et personnalisée, n'hésitez pas à nous contacter
Caractéristiques du modèle
| Surface | 143.02 m2 |
| Pièces | 6 |
| Chambres | 3 |
| Salle de bain | 2 |
Description
En cours de rédaction
Plan
