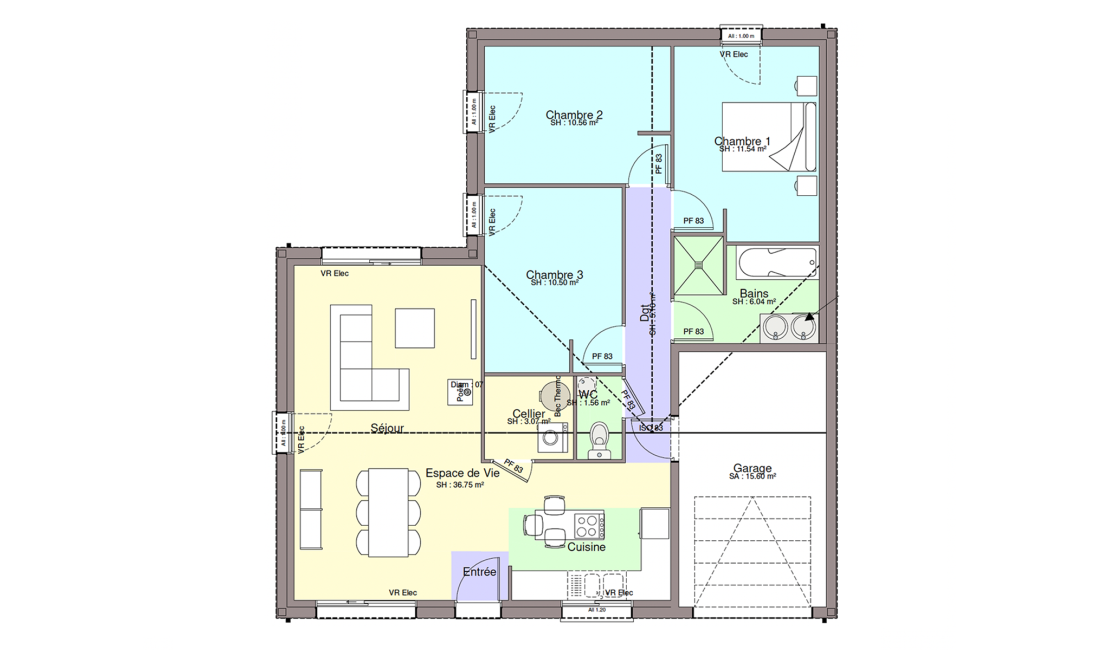
Modèle
                                    
                                        CONCEPT 2
                                    
                                Surface
                                     85 m2 
                                Chambres
                                     3 
                                Vous souhaitez obtenir davantage d'informations ?
Si vous avez besoin de plus d'information ou désirez obtenir une étude gratuite et personnalisée, n'hésitez pas à nous contacter
Caractéristiques du modèle
| Surface | 85.18 m2 | 
| Pièces | 5 | 
| Chambres | 3 | 
| Salle de bain | 1 | 
Description
En cours de rédaction
Plan
 
                                
