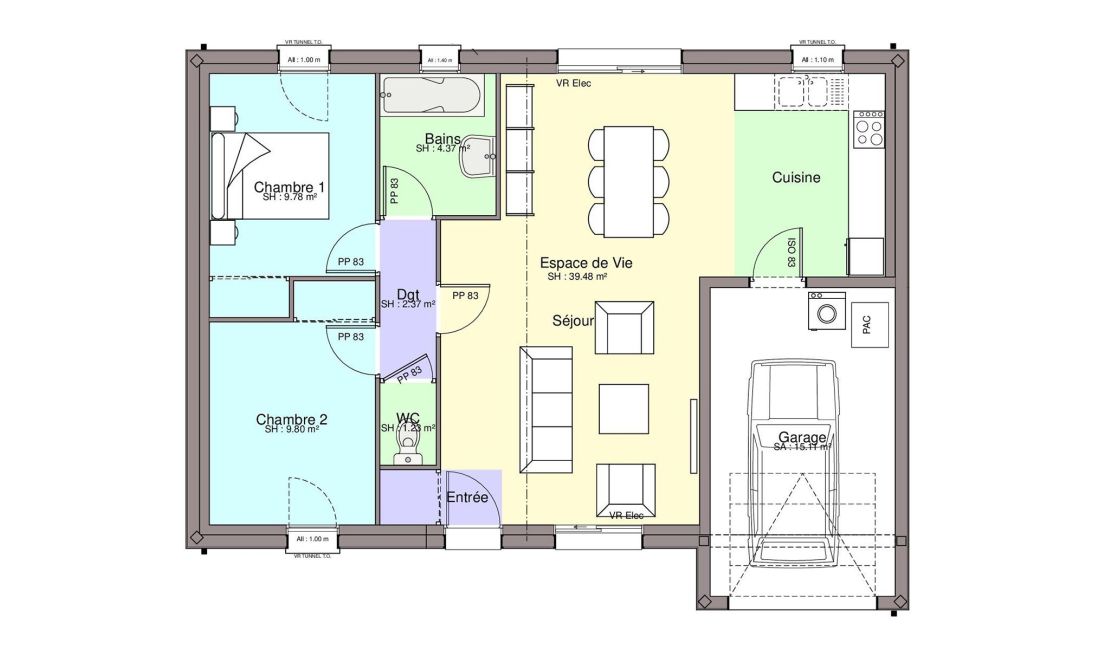
Modèle
PAV 2CH67 GI-AR-T
Surface
67 m2
Chambres
2
Vous souhaitez obtenir davantage d'informations ?
Si vous avez besoin de plus d'information ou désirez obtenir une étude gratuite et personnalisée, n'hésitez pas à nous contacter
Caractéristiques du modèle
Surface | 67.03 m2 |
Pièces | 4 |
Chambres | 2 |
Salle de bain | 1 |
Description
Construisez votre maison sur mesure avec Maisons RÊVÉA :- Plan personnalisé de 2 à 5 chambres
- Mode de chauffage au choix : aérothermie, gaz...
- Grands choix d'équipements design : salles de bains contemporaines, menuiseries, carrelages, portes d'entrée...
- Matériaux de qualité selon les normes en vigueur
Demandez votre étude gratuite et personnalisée !
Plan
